Vajad Mõõdistusprojekti?

Aitame sul kiiresti ja korrektselt koostada mõõdistusprojekti!

Mis on mõõdistusprojekt?

Mõõdistusprojektis tuuakse välja ehitise olulisemad tehnilised näitajad ja ehitise arhitektuursed joonised. Mõõdistusprojekt koostatakse olemasolevale hoonele. Enamasti koostatakse juhtudel kui hoonet on vaja seadustada või kui puudub esialgne projekt, mille alusel hoone ehitati. Mõõdistusprojekt on oluline osa hoone seadustamisel, auditeerimisel ja kasutusloa saamisel.

Millal vaja mõõdistusprojekti?

Hoone pikkus, laius või kõrgus

Hoone korruse siseplaneering

Hoone tehnosüsteemi

Hoone kasutusviis

Millal vaja mõõdistusprojekti?

Protsessi kirjeldus

  1. 1
    Täida hinnapäringu vorm
  2. 2
    Saadame Teile esmase hinnapakkumise
  3. 3
    Anna vastus meie hinnapakkumisele (seda saad teha automaatsete valikutega).
  4. 4
    Hinnapakkumise sobivuse korral võtame Teiega ühendust ja täpsustame tööde mahu üle
  5. 5
    Alustame töödega (üldiselt tööd valmivad 14 päeva jooksul)
  6. 6
    Valmib teie ehitisest mõõdistusprojekt.

Täida allolev mõõdistusandmete vorm

ja aitame sul koostada professionaalse mõõdistusprojekti!

Kontaktinfo

Hoone tüüp

EHR andmed
  • Aadress:
  • Korruselisus:
  • Suletud netopind:

Kui te ei tea hooneregistri koodi, palun täitke järgmised väljad:

Lisaküsimused

Kas soovid, et sinuga võetakse ühendust ja konsulteeritakse töösisu ja teenuse osas? *

Näiteks: eritingimused, tähtajad, eelistused vms.

Täname avalduse eest!

Teie avaldus on edukalt vastu võetud.

Vorm suletakse automaatselt 5 sekundi pärast...

Tehtud tööd

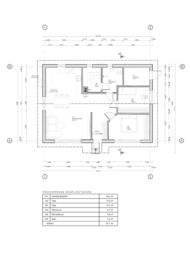
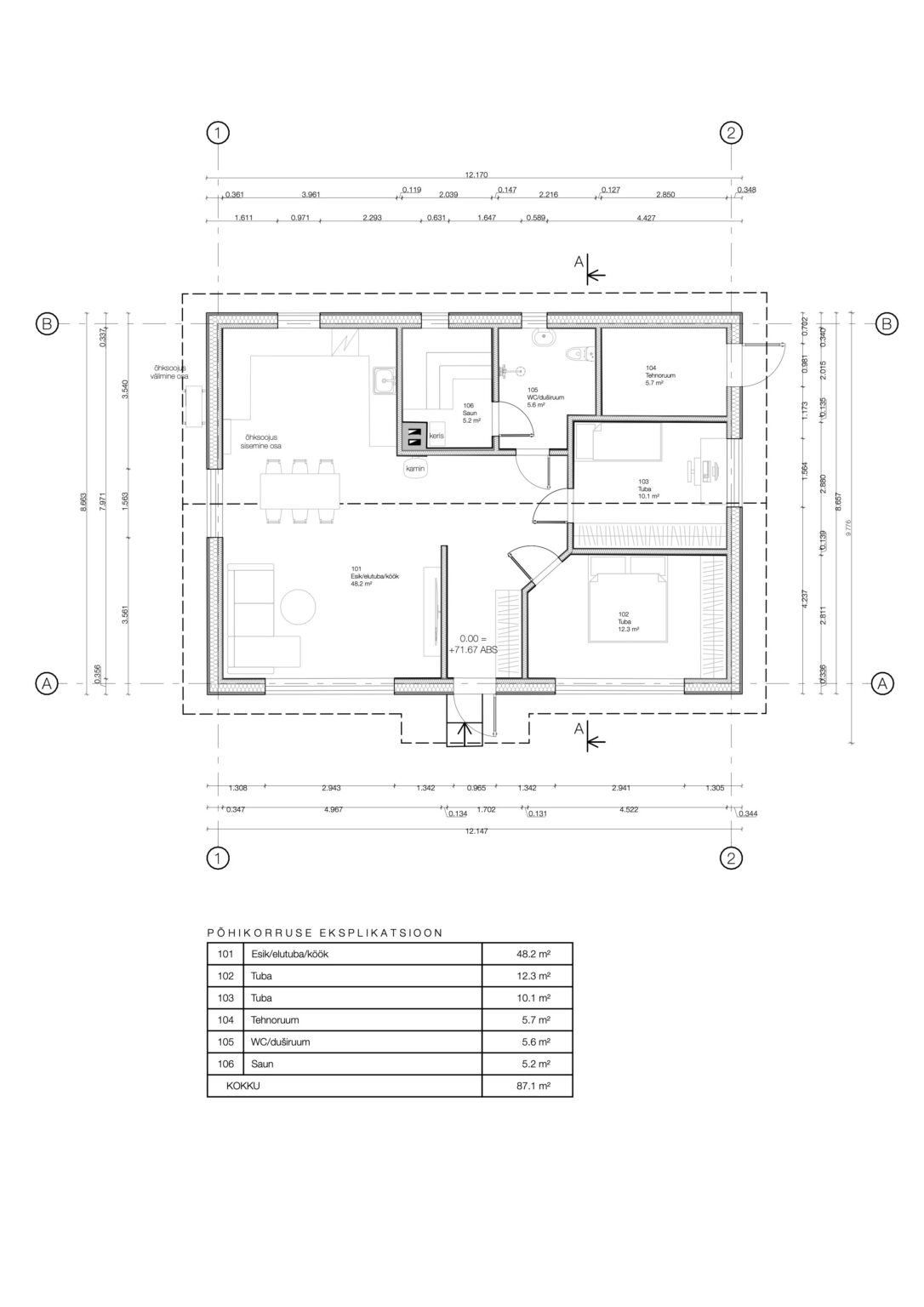
MÕÕDISTUS_ELAMU-1_PÕHIPLAAN

MÕÕDISTUS_ELAMU-1_VAATED

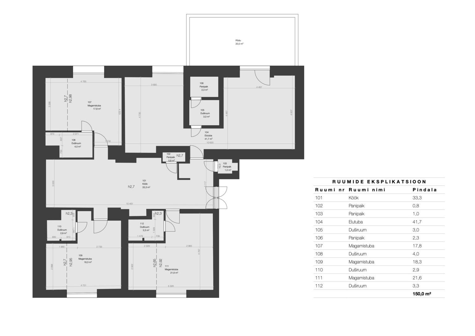
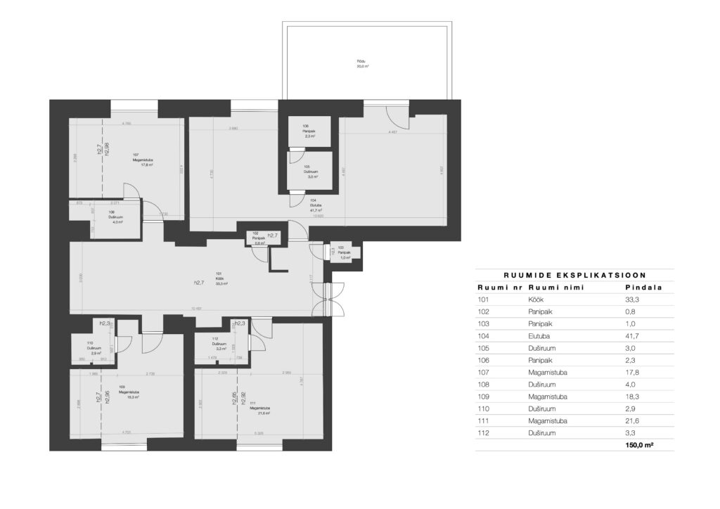
MÕÕDISTUS_KORTER